
用户使用需求
Orisun展厅中的一个体验厅,主要展示7.2.4声道全景声系列,同时打造声光电一体化影院K歌主流娱乐室。
认识设计师

设计师:许育平
个人简介:从事音响行业22年。参与过THX培训,擅长空间声学调整和影院布局、多炮调试,将专业影院融入家用。
空间信息及投入
位置及周边概括性描述:东莞市莞城区天宝设计城
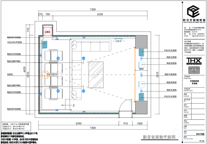
空间信息:长5.3×宽7.3×高3m
影院构建过程,声学/光学处理及特别设计




设备柜采用隐藏设计,隔音采用弹性减震结构,隔音门外观为深色墙板加上声学模块,整个空间为现代家居娱乐空间打造。

设计与调试心得

为了符合房间整体体验效果,保证房间内噪音NC25数值,将墙面天花、地板等六个面做深度减震隔音结构后再做饰面。天花前半部分为星空造型,有效减轻天花反射。经过后期调整,侧墙和后墙的墙面壁挂了声学模块,解决第一反射声造成的声音结像模糊的问题。
考虑兼顾KTV功能,房间沙发布局经过计算,最大化“听感甜区”,采用双排布局,错开房间纵向的1/4声学缺陷区。


设备参照HAA标准布置摆放,前期通过DSP处理器对2个低音炮做相位延时调整,再交给Dirac Live修正。


整体效果,低频下潜深、有力,和中频衔接到位,环绕声连贯,细节丰富,整体声压75dB,瞬间动态105dB,接近THX要求。



器材列表
投影机:Sony VW5000ES
幕布:定制160英寸4K微孔透声
主音箱:Orisun OS-LCR218×2
中置音箱:Orisun OS-LCR218
环绕音箱:Orisun OS-IW118×4
吸顶全景声:Orisun OS-IC8×4
低音炮:Orisun TH-15×2
前级解码:Onkyo RZ50
DSP处理器:DSP4800
后级功放:Orisun OA-S11
播放器:魅视9205
KTV系统:MBWS Audio娱乐系统
智能控制系统:聪普全宅
※ 影音中国网原创稿件,未经许可不得转载、节录及改编。
※ 致读者:影音CN所刊案例均为设计师投稿。为保障原作者权益,减少盗图纠纷,案例版面图片均已加水印处理。由此可能影响读者的阅读,特表歉意。








